Italiano
Cerca con noi la tua nuova casa

Appartamento con giardino privato a Meldola

239.000 €
126 m2
3 Camere
2 Bagni
Codice
A3-603
Città
Meldola
Categoria
Appartamento
Spese condominiali
1.200 €
Locali
4
Box
1
Piano
2
Classe energetica
F
Stato Immobile
Buono
Grado
Signorile
Panorama
Vista Aperta
Lati Liberi
3
Giardino
Privato
Arredi
Possibilità
Tipo Soggiorno
Soggiorno
Tipo Cucina
Angolo Cottura
Riscaldamento
Conta Calorie
Tipo Riscaldam.
Caldaia
Tipo Impianto
Radiatori
Fonte Energetica
Metano
Acqua Calda
Autonoma
Infissi
PVC
Accessori
Aria Condizionata, Ascensore, Cancello Elettrico, Doppi Vetri
Rif.A3-603 Meldola – Centro paese, in posizione riservata e tranquilla
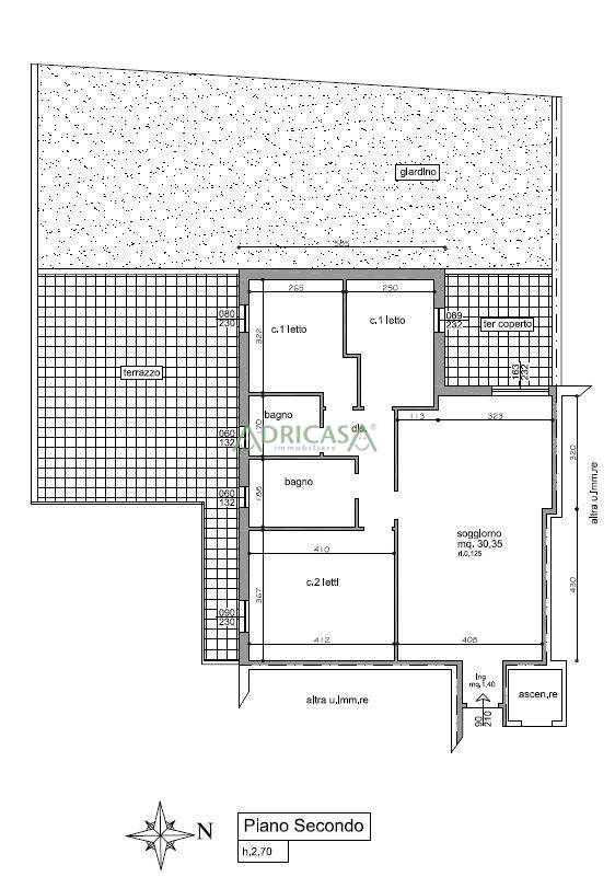
Nel cuore di Meldola, in un piacevole angolo di tranquillità, proponiamo in vendita appartamento con giardino privato, disposto interamente su un unico livello.
L’immobile si apre su un ingresso che conduce all’ampio e luminoso soggiorno con angolo cottura, affacciato su una comoda loggia e sul giardino angolare di proprietà, ideale per momenti di relax all’aperto.
La zona notte è composta da tre camere da letto, di cui una matrimoniale e due singole, due bagni entrambi finestrati e ampio terrazzo.
Completano la proprietà un garage doppio e ottime finiture: inferiate, impianto di allarme, aria condizionata, tapparelle elettriche nella zona giorno.
Riscaldamento con contacalorie e basse spese condominiali.
Soluzione ideale per chi desidera vivere in centro senza rinunciare alla tranquillità e agli spazi esterni.
Per informazioni e visite contattare 335 7045457 - Adriana

Mappa

Via Carlo Pisacane , Meldola (FC)

Condividi

Cookie preference